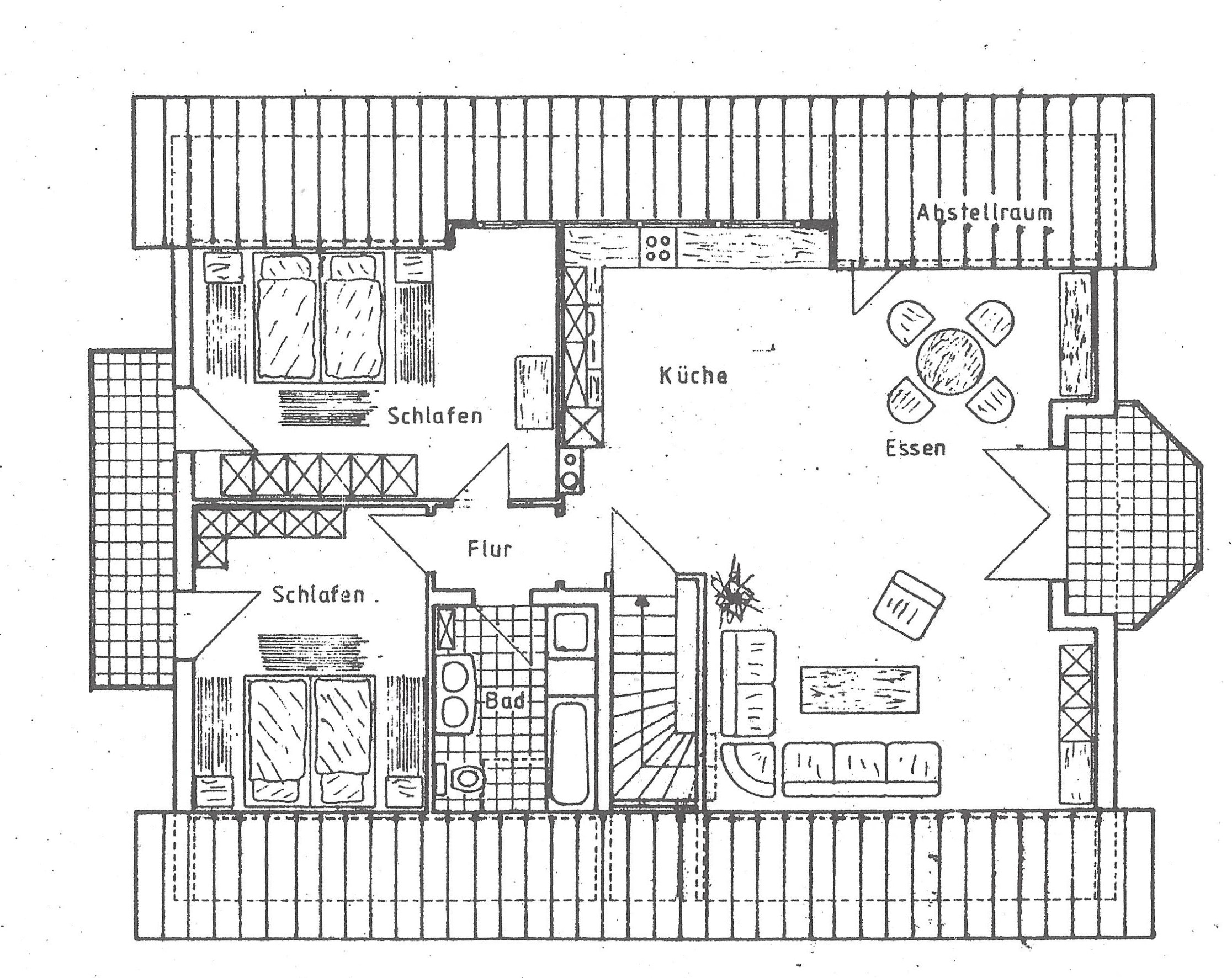
Insgesamt umfasst unsere Wohnung eine Fläche von 104 m², aufgeteilt auf 2 Schlafzimmer, Badezimmer, Küche, Wohn- und Esszimmer, Abstellraum und zwei Balkone.
Von den Balkonen haben sie einen schönen Blick über die Stadt Birkenfeld.
Schlafzimmer 1
Doppelbett mit 200 x 200 cm Liegefläche, großer Schiebetüren-Kleiderschrank, Schlafsofa, Beistelltisch, Bettwäsche, Kinder-Reisebett
Schlafzimmer 2
Doppelbett mit 180 x 200 cm Liegefläche, 5-türiger Kleiderschrank, Ganzköperspiegel, Ruhesessel, Bettwäsche
Badezimmer
Badewanne, Dusche mit Duschkabine, Badezimmerschrank, Sitzbank, Fön, Handtücher
Küche
Spüle, komplette Geschirr- und Besteckausstattung, diverse Küchengeräte wie Mixer, Eierkocher, Toaster, Wasserkocher, Pürierstab, Kaffeemaschine, Spülmaschine, Kühlschrank, Gefrierschrank, Backofen, Bügelbrett und Bügeleisen, Wäscheständer
Wohnzimmer
Ein Zwei- und ein Dreisitzer, Flatscreen TV mit Satellitenreceiver, DVD-Player, Stereoanlage mit Radio und CD-Player, diverse Bücher und Spielesammlung
Esszimmer
Esszimmertisch mit acht Stühlen, Hochstuhl
Flur
Außenanlage
Balkone
Grundriss

